Ref: 1363. Hay inmuebles que destacan por su estado. Y otros que destacan por su potencial. Este piso situado en Barrio de las Angustias, justo encima del Ayuntamiento de Cenes de la Vega, representa una excelente oportunidad para quienes buscan una vivienda amplia en una ubicación consolidada, con la posibilidad de adaptarla a su propio gusto y necesidades.
Con casi 130m² construidos y completamente exterior, la vivienda disfruta de luz natural en las distintas estancias a lo largo del día. Su ubicación es estratégica: junto a la calle principal del municipio, con parada de autobús cercana, comercios a pocos metros y en un entorno tranquilo y consolidado, a escasos minutos de Granada capital.
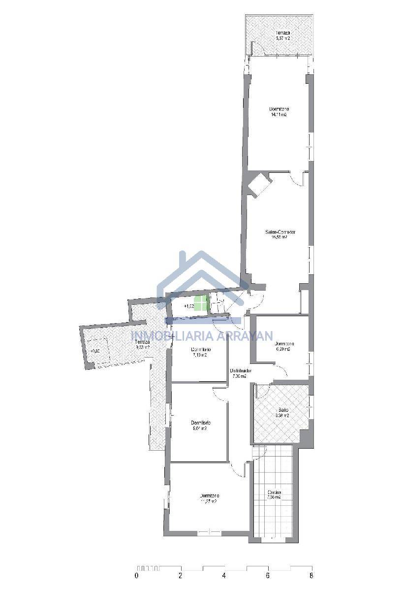
Actualmente, el inmueble se encuentra dividido mediante un tabique en dos unidades funcionales:
La primera unidad: con un salón-comedor con chimenea, muy luminoso y una habitación con vistas despejadas y una terraza que le brinda luz y calidez. Con aproximadamente 45 metros cuadrados y la posibilidad de hacerle un baño para completar la vivienda.
La segunda unidad cuenta con aproximadamente 85 metros cuadrados, distribuidos actualmente en tres dormitorios, un baño, un salón y una cocina independientes, también todo exterior y luminoso.
Esta configuración permite distintas opciones según las necesidades del futuro propietario, desde mantener la distribución actual hasta reunificar los 129 m² para crear una amplia vivienda familiar con gran sensación de espacio.
El precio competitivo responde a la necesidad de reforma, lo que permite al comprador adaptar completamente la distribución, calidades y diseño a su propio proyecto. Elementos como la chimenea, la amplitud de los espacios, su inmejorable ubicación y gran conexión, teniendo la parada de la línea 33 a menos de 1 minuto de su entrada, así como su carácter totalmente exterior, aportan una base sólida para su actualización.
En el área metropolitana de Granada, no es habitual encontrar viviendas con estos metros, esta ubicación y este carácter exterior, lo que la convierte en una opción muy interesante para quienes valoran el espacio, la luz y la cercanía a la ciudad.
Una vivienda con metros, ubicación y posibilidades reales de convertirse en un gran hogar.
El PVP indicado no incluye impuestos, gastos de Escritura ni honorarios de agencia. Las superficies expresadas en esta página tienen carácter descriptivo y son aproximadas. Los precios pueden ser susceptibles de modificación sin previo aviso.
Servicios cercanos: Autobús, Colegios, Guardería, Biblioteca, Parque, Farmacia, Supermercado, Restaurantes, Centro sanitario, Centro deportivo

Agente: INMOARRAYAN
641013359
641013359
contacto@inmoarrayan.com
| Referencia |
1363 |
| Tipo de Inmueble |
Piso |
| Transacción |
Venta |
| Provincia |
Granada |
| Población |
Cenes de la Vega |
| Estado del Inmueble | algo de reforma |
| Año Construcción | 1960 |
| Superficie |
130 m² |
| Cocina | Cocina independiente |
| Cocina equipada |
|
| Habitaciones | 4 |
| Baños |
Baños: 1 |
| Terraza |
|
| Exterior |
|
| Puerta principal | Seguridad |
| Puertas | Madera lacada |
| Ventanas | Aluminio |
| Suelo | Gres |
| Chimenea |
|
| Importe a financiar |
| Interés |
| años |
148000 € | 130 m² | 4 Habitaciones | 1 Baños
| Nombre* | |
| Teléfono* | |
| Email* | |
| Mensaje* | |
| Consiento el tratamiento de mis datos. Jorge Freire Docampo tratará sus datos con la finalidad de contestar a sus consultas, dudas o reclamaciones. Puede ejercer sus derechos de acceso, rectificación, supresión, portabilidad, limitación y oposición, como le informamos en nuestra Política de Privacidad y Aviso Legal. |